Elýti Residences – Μεζονέτα 2 Επιπέδων Δ2
142,53 τ.μ.
4 Υ/Δ
2 Μπάνια
2 Σαλόνια
1 Κουζίνα
1ος
Ναι
1 Θέση
Βασικά Χαρακτηριστικά
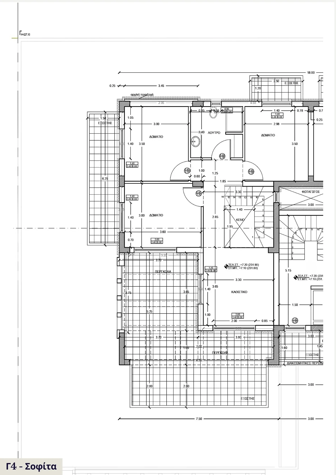
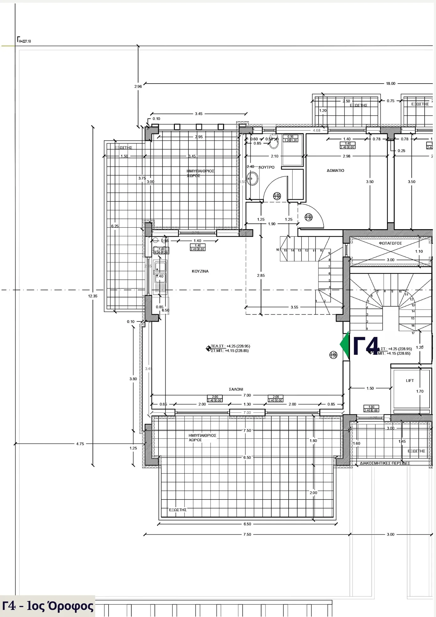
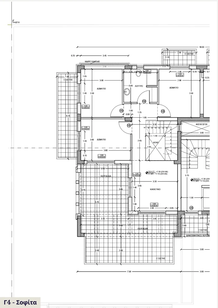
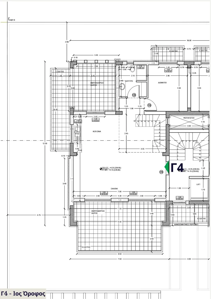
Στο Elýti Residences, η URBAN VILLA RESIDENCE – Πολυτελής Μεζονέτα Δ2 (142,53 τ.μ., 1ος & σοφίτα) εκφράζει τη λιτή πολυτέλεια μέσα από καθαρές γεωμετρίες, διαμπερή φωτισμό και αρχιτεκτονική συνέπεια. Ο πρώτος όροφος οργανώνει την καθημερινή ζωή σε ανοιχτό καθιστικό–κουζίνα με πρόσβαση σε δύο ημιυπαίθριους χώρους, ενώ το ανεξάρτητο υπνοδωμάτιο με ιδιωτικό μπάνιο προσθέτει ευελιξία και ιδιωτικότητα. Στη σοφίτα, τρία ακόμη υπνοδωμάτια, κοινόχρηστο μπάνιο και χώρος καθιστικού/εργασίας πλαισιώνονται από βεράντες με πέργκολες και θέα, ενισχύοντας τη σύνδεση μέσα–έξω. Η κάθετη κίνηση εξασφαλίζεται με εσωτερική σκάλα και πρόσβαση από ανελκυστήρα έως το υπόγειο, ενώ οι έτοιμες υποδομές για έξυπνη ενεργειακή διαχείριση διαμορφώνουν ένα σπίτι με ήρεμη δύναμη, υψηλή χρηστικότητα και μακροχρόνια αξία.
Διατίθεται προς απόκτηση στα 370.000€

Εσωτερική Διαρρύθμιση
Τεχνικά & Ποιοτικά Χαρακτηριστικά:
- Ενεργειακή Απόδοση Κατηγορίας A+
- Θερμοπρόσοψη & Μόνωση τελευταίας γενιάς
- Ενδοδαπέδια Θέρμανση
- Αυτόνομη μονάδα φυσικού αερίου
- Τριπλά κουφώματα KOMMERLING με ηλεκτρικά ρολά
- Ηλιακοί θερμοσίφωνες
- Είδη υγιεινής GROHE
- Πλακάκια πορσελάνης 60×120
- Υδραυλικά THERMOPLAST & πίνακες LEGRAND
- Θυροτηλεόραση με κάμερα, πλήρης προεγκατάσταση
internet & συναγερμού
Εξωτερικοί Χώροι
στοιχεία για απόλυτη αισθητική εναρμόνιση με το περιβάλλον.
Τοποθεσία & Πρόσβαση:
- Φούρνος: 18 μ.
- Σχολεία: 97–500 μ. (Γυμνάσιο, Δημοτικό, Νηπιαγωγείο)
- Φαρμακείο: 380 μ.
- Στάση ΟΑΣΘ: 100 μ.
- Λίμνη Ωραιοκάστρου: 1,2 χλμ.
- Super Market & Πλατείες: <800 μ.
Κατόψεις
Εκδήλωση Ενδιαφέροντος
Ανακαλύψτε από κοντά την εμπειρία κατοικίας στο Elýti Residences.
Συμπληρώστε τη φόρμα επικοινωνίας για να προγραμματίσουμε μια ιδιωτική παρουσίαση του διαμερίσματος, προσαρμοσμένη στις ανάγκες και τον ρυθμό σας.
Η ομάδα μας είναι στη διάθεσή σας για να σας καθοδηγήσει σε κάθε βήμα της διαδικασίας.

