Alexandrou Corner Residences
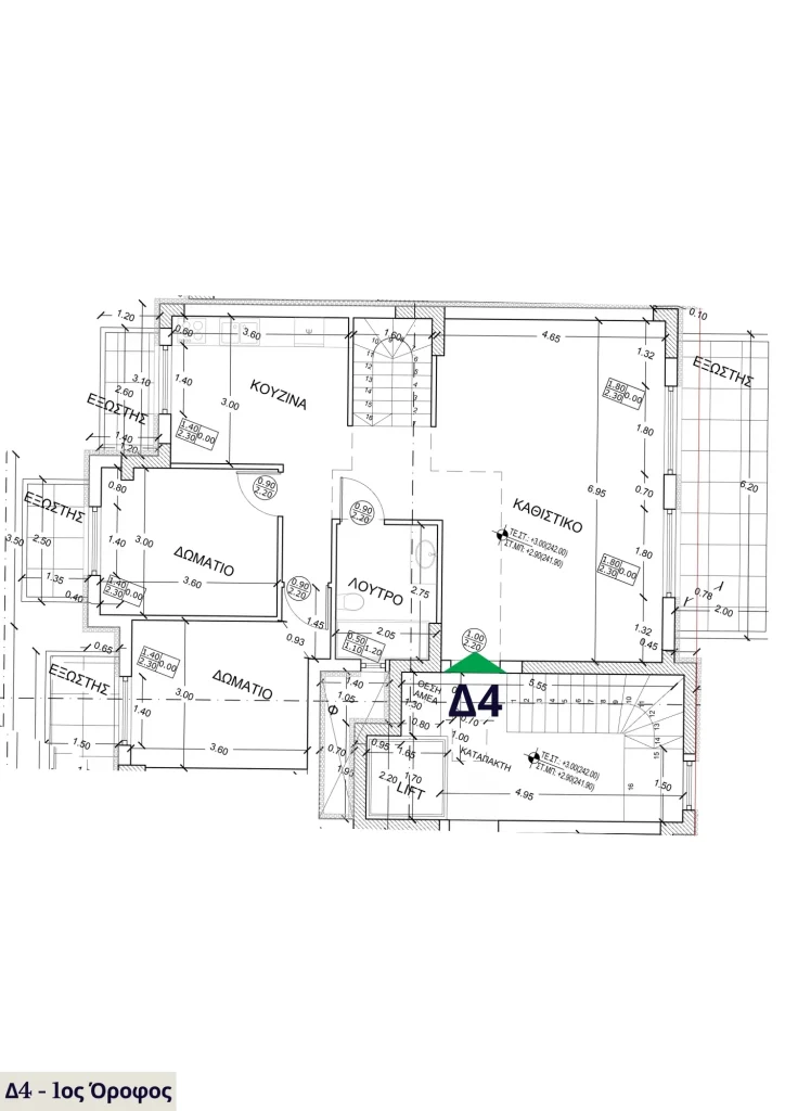
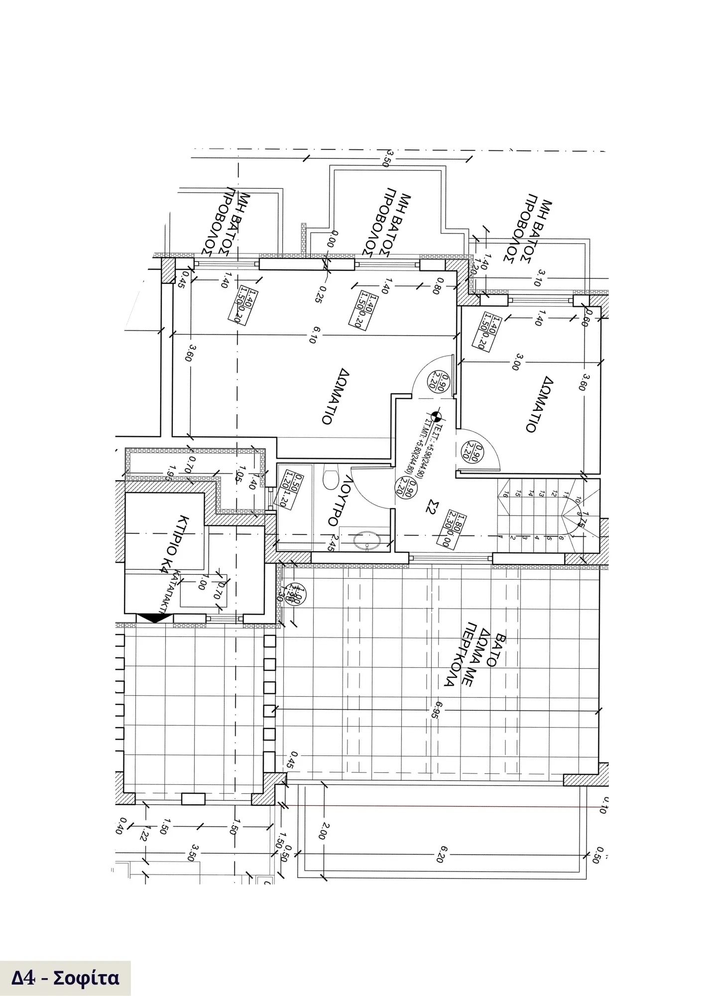
The Horizon Duplex – Μεζονέτα Δ4
165,08 τ.μ.
4 Υ/Δ
2 Μπάνια
1 Σαλόνι
1 Κουζίνα
1ος
Ναι
1 Θέση
Βασικά Χαρακτηριστικά
Στο Alexandrou Corner Residences, η The Horizon Duplex – Μεζονέτα Δ4 (165,08 τ.μ., 1ος & σοφίτα + βατό δώμα) ισορροπεί διακριτική πολυτέλεια και καθημερινή λειτουργικότητα: ενιαίος καθιστικός–τραπεζαρία με άπλετο φως και άμεση σύνδεση σε εξώστη, ανεξάρτητη κουζίνα, 4 υπνοδωμάτια και 2 μπάνια με καθαρό διαχωρισμό ζωνών. Το βατό δώμα με πέργκολα λειτουργεί ως ιδιωτικό υπαίθριο lounge/τραπεζαρία με πανοραμική θέα, προσθέτοντας σπάνια αξία και ατμόσφαιρα. Με υπόγεια θέση στάθμευσης, σύνδεση μέσω ανελκυστήρα, ενεργειακή απόδοση Α+, προεγκατάσταση φυσικού αερίου και υποδομές smart home, η Δ4 αποδίδει ένα ολοκληρωμένο αστικό καταφύγιο με χαρακτήρα και προοπτική.
Διατίθεται προς απόκτηση στα 430.000€

Εσωτερική Διαρρύθμιση
Τεχνικά & Ποιοτικά Χαρακτηριστικά:
- Ενεργειακή Απόδοση Κατηγορίας A+
- Ενδοδαπέδια Θέρμανση (φυσικό αέριο)
- Ηλιακός Θερμοσίφωνας
- Κουφώματα KOMMERLING με τριπλά τζάμια & θερμομόνωση
- Πλακάκια πορσελάνης 60×120
- Είδη υγιεινής GROHE
- Ηλεκτρικά ρολά, Θυροτηλεόραση με κάμερα
- Υποδομές για Smart Home, Συναγερμό & Internet
Εξωτερικοί Χώροι
Τοποθεσία & Πρόσβαση:
- Σχολεία: 100–500 μ.
- Super Market, mini markets & λιανικό εμπόριο: 200 μ.
- Στάση ΟΑΣΘ: μόλις 100 μ.
- Πάρκα, παιδικές χαρές και η λίμνη του Ωραιοκάστρου: 1,2 χλμ.
Κατόψεις
Εκδήλωση Ενδιαφέροντος
Το συγκρότημα κατοικιών Alexandrou Corner Residences συνδυάζει αρχιτεκτονική υπεροχή με υψηλή ποιότητα κατασκευής.
Συμπληρώστε τη φόρμα για να λάβετε αναλυτικό υλικό παρουσίασης, κατόψεις και πληροφορίες για τις διαθέσιμες κατοικίες.
Η ομάδα μας θα επικοινωνήσει μαζί σας για να σας καθοδηγήσει προσωπικά σε κάθε βήμα της διαδικασίας απόκτησης.

