Alexandrou Corner Residences
The Elevated Residence – Μεζονέτα Δ3
168,87 τ.μ.
3 Υ/Δ
2 Μπάνια
1 Σαλόνι
1 Κουζίνα
1ος
Ναι
1 Θέση
Βασικά Χαρακτηριστικά
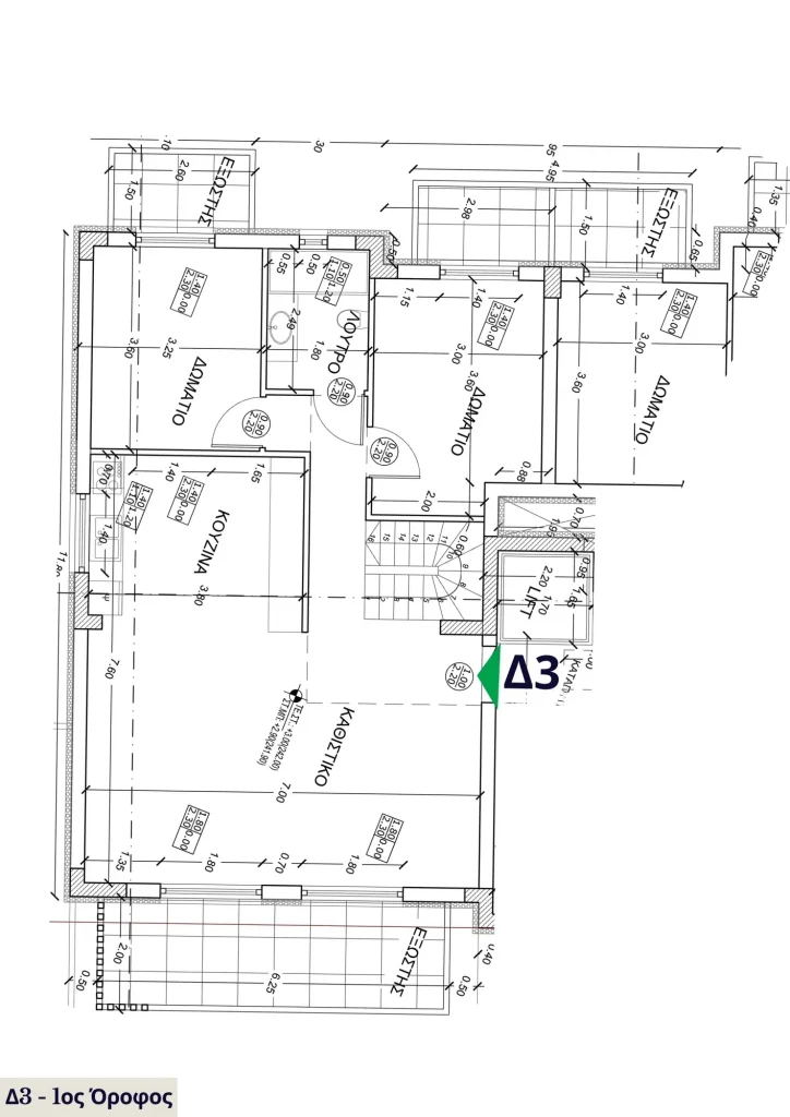
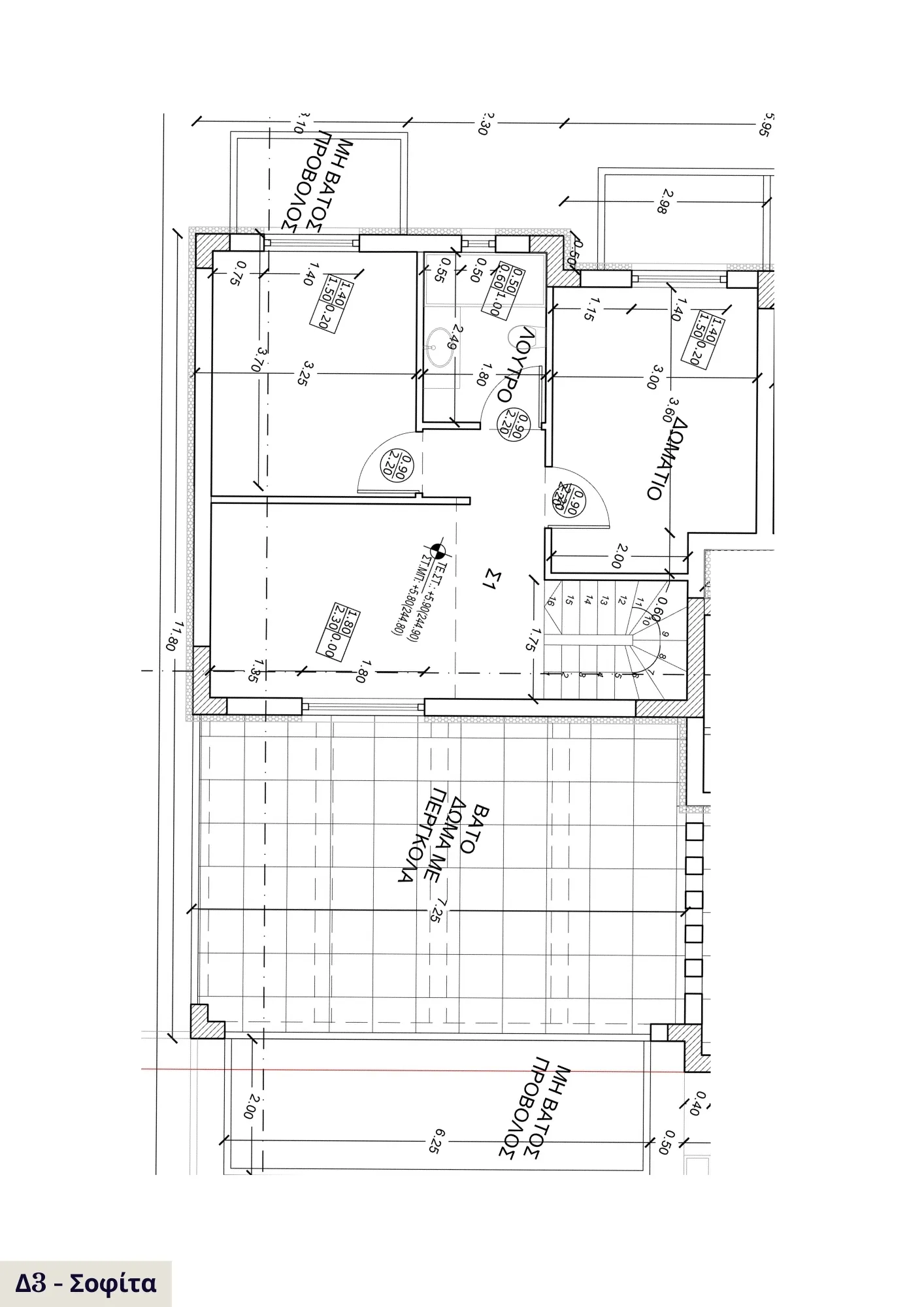
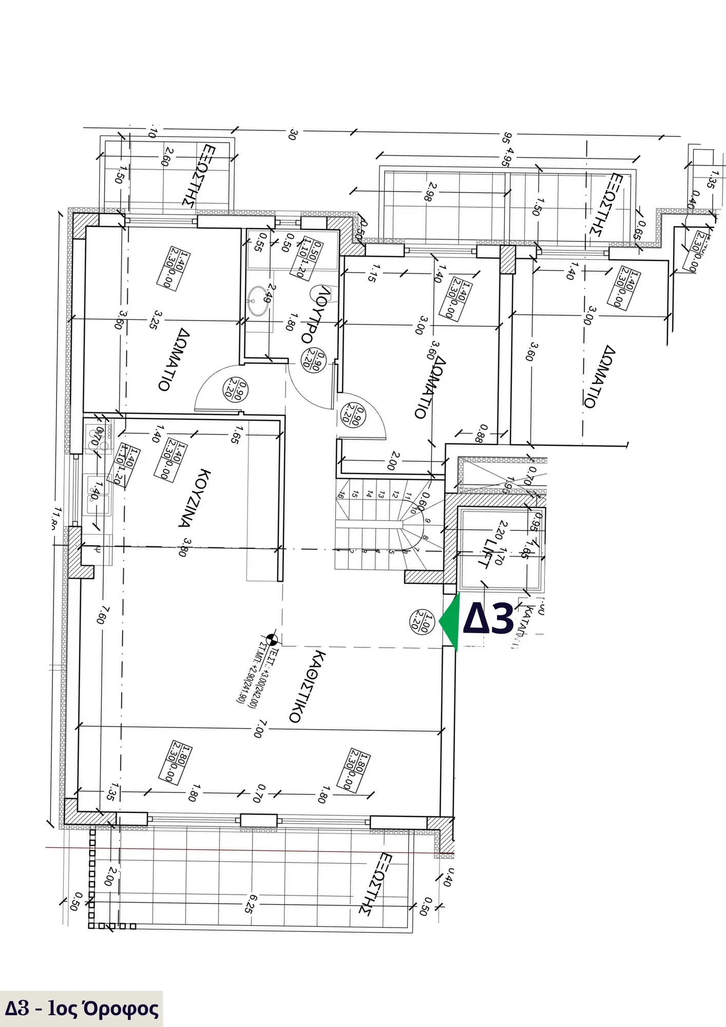
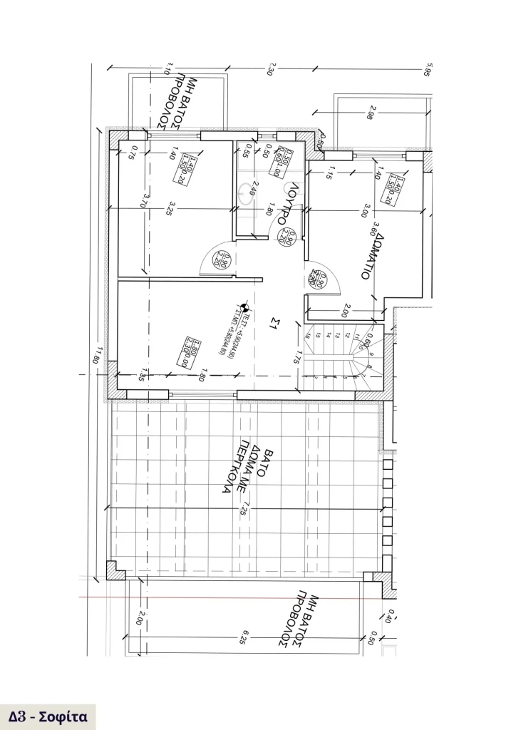
Στο Alexandrou Corner Residences, η The Elevated Residence – Μεζονέτα Δ3 (168.87 τ.μ., 1ος & σοφίτα) αποδίδει την έννοια της σύγχρονης κατοίκησης σε δύο επίπεδα με καθαρή γεωμετρία και απόλυτη λειτουργικότητα. Ο κύριος όροφος φιλοξενεί ενιαίο καθιστικό–τραπεζαρία με φυσική ροή προς μεγάλους εξώστες, ανεξάρτητη κουζίνα, άνετο υπνοδωμάτιο και μπάνιο, ενώ στη σοφίτα διαμορφώνονται δύο ακόμη υπνοδωμάτια, δεύτερο μπάνιο και διακριτικοί χώροι αποθήκευσης. Η ανεξάρτητη πρόσβαση στο δώμα με πέργκολα δημιουργεί ιδιωτικό υπαίθριο lounge με πανοραμική αστική θέα. Με υπόγεια θέση στάθμευσης, πλήρη σύνδεση μέσω ανελκυστήρα, ενεργειακή απόδοση Α+, προεγκατάσταση φυσικού αερίου και υποδομές smart home, η Δ3 συνδυάζει αισθητική ακρίβεια, εργονομία και διακριτική πολυτέλεια.
Διατίθεται προς απόκτηση στα 440.000€

Εσωτερική Διαρρύθμιση
Τεχνικά & Ποιοτικά Χαρακτηριστικά:
- Ενεργειακή Απόδοση Κατηγορίας A+
- Ενδοδαπέδια Θέρμανση (φυσικό αέριο)
- Ηλιακός Θερμοσίφωνας
- Κουφώματα KOMMERLING με τριπλά τζάμια & θερμομόνωση
- Πλακάκια πορσελάνης 60×120
- Είδη υγιεινής GROHE
- Ηλεκτρικά ρολά, Θυροτηλεόραση με κάμερα
- Υποδομές για Smart Home, Συναγερμό & Internet
Εξωτερικοί Χώροι
Τοποθεσία & Πρόσβαση:
- Σχολεία: 100–500 μ.
- Super Market, mini markets & λιανικό εμπόριο: 200 μ.
- Στάση ΟΑΣΘ: μόλις 100 μ.
- Πάρκα, παιδικές χαρές και η λίμνη του Ωραιοκάστρου: 1,2 χλμ.
Κατόψεις
Εκδήλωση Ενδιαφέροντος
Το συγκρότημα κατοικιών Alexandrou Corner Residences συνδυάζει αρχιτεκτονική υπεροχή με υψηλή ποιότητα κατασκευής.
Συμπληρώστε τη φόρμα για να λάβετε αναλυτικό υλικό παρουσίασης, κατόψεις και πληροφορίες για τις διαθέσιμες κατοικίες.
Η ομάδα μας θα επικοινωνήσει μαζί σας για να σας καθοδηγήσει προσωπικά σε κάθε βήμα της διαδικασίας απόκτησης.

